Home
CV
Contact
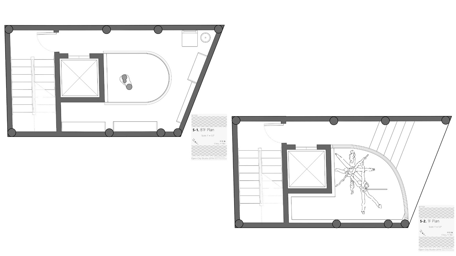
PROJECT NAME:
Animation Cafe & Book Store Pencil Building
LOCATION:
Jimbocho Chiyoda Kanda Tokyo, Japan
DESIGNER:
Chiou, Yi-Wei
DATE:
Summer 2016