|
PROJECT NAME: Miami Light House Micro Housing Tower LOCATION: 116 West Flagler ST, Miami, U.S.A. DESIGNER: Chiou, Yi-Wei DATE: Spring 2016 |
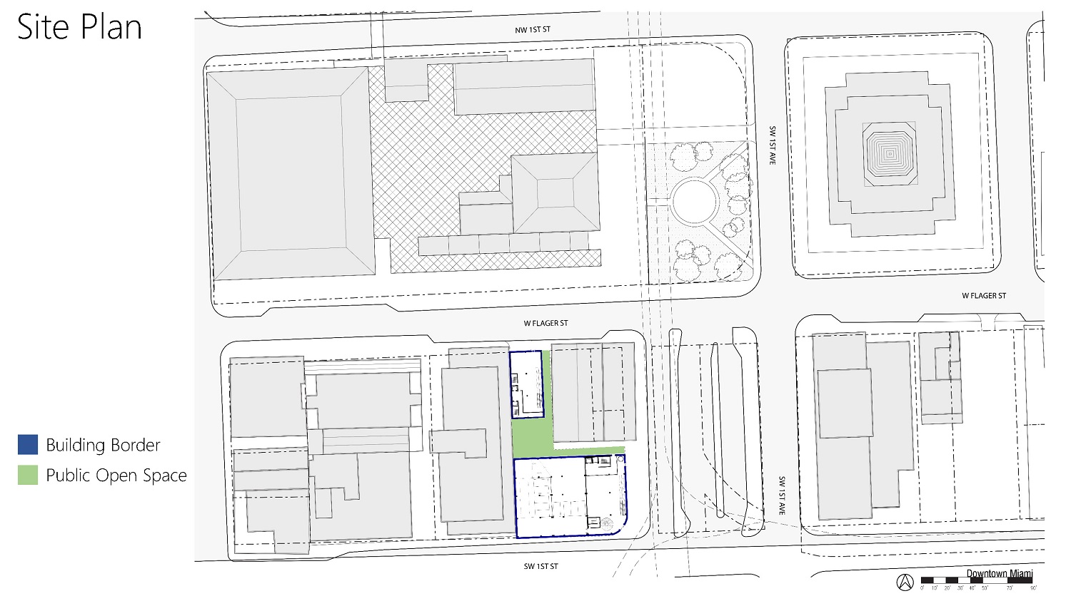
| Coral reef, ocean wave and lighthouse are three elements constitute the spirit of Miami Lighthouse, they respectively represent the corner stone, marine culture and home of Miami. Miami Lighthouse is a 33-stories residential and commerical complex tower located at Downtown Miami, this building aims for advancing living standard, aesthestics and providing affordable housing to young people who work in downtown. Therefore Miami Lighthouse provides 184 affordable micro units, 5 retails including 1 art gallery, over 15,000 ft2 public outdoor space, and several public facilities like pool, gym, laudry, roof garden, lounge and study room for residence. Living in Miami Lighthouse is intersting and delighting, transforming furnitures will surprisingly create more essential space for residence, and you can feel no difference between 330 ft2 unit and one-bedroom apartment. |